华南zui大的火锅店
华南zui跨界的火锅店
全国首家故障艺术风的火锅店
全国首家与星际熊合作的火锅店
「 我就是个笨娃,只会下最笨的功夫,做最牛的蛙!」创始人老胡十几岁从安徽的山里走到大城市打拼,从一个山里孩子到相继拿下广州必食榜餐厅、广州牛蛙火锅第一名。他一直坚信只有笨功夫方显真本事,这与壹方主持设计师胡泽做被需要的设计的品牌理念不谋而合,相同的价值观让两人在此次品牌升级设计的过程里彼此尊重互相成就。
01
MR. BUG
笨蛙
不同于时下流行热门的火锅店风格
作为笨蛙的2.0升级版本
并携手潮玩品牌星际熊
融入故障风艺术装置
将潮酷与先锋艺术
作为空间精神内核演绎的淋漓尽致
为品牌的个性和当代艺术
及生活方式做了自然的过渡和诠释
壹方设计团队针对笨蛙
商业定位群体的社交模式做了更多调研
结合广州多元的在地文化及生活方式
以餐酒火锅+劲吧多场景消费模式呈现
02
CHINESE STYLE
趣味与国风
设计在满足商业诉求的同时
不忘注入趣味性和国风艺术
景德镇的国潮风的碗碟
特别定制的至新黑科技仿真火焰
随处可见的趣味slogan
伴随着空间游走的智能机器人
在过去 当下 未来之间形成连接与对话
为客人在空间的后续体验做足了铺垫
03
POP TOY
潮玩
潮玩已成为z世代
生活必需品和精神生活的一部分
设计借助广州本土的原创国朝
旨在通过潮玩元素
表达品牌主旨 传达爱与能量
为当下年轻人敢于突破所知慷慨造梦
无所畏惧的生活及工作态度
构建一个二次元的理想世界
04
SPECIAL
独特
突破以往的空间调性
设计师将独特成像特点的
故障艺术运用到空间中
传达年轻 时尚 潮 酷 多变的个性意义
独特的失真 破碎 错位 变形
形成的错误图像演变成新的设计形式
更意味着意外和变化和打破常规的再创作
05
FIERY
火热
置身于火锅店的酒吧是怎样一种感受
设计师的灵感构成源起于火锅的火热氛围
将劲吧的热烈通过中心的舞台植入空间体系
曲面造型的舞台灯光配合故障风的屏幕
零点时分在乐手的歌声中将夜点燃
笨蛙全场秒变livehouse玩味十足
06
EMOTIONAL EXPERIENCE
情绪体验
设计从空间本质中又探寻到新的意义
设计服务的不止是空间本身
设计的价值体现在为人创造更多的情绪体验
在笨蛙的空间里
设计师没有拘泥于任何一种形式
而是通过增强人感官体验的形式
植入当下艺术与科技元素
铺叙视觉与触觉的共振创造一种
能够突破空间场景界限的独特体验
07
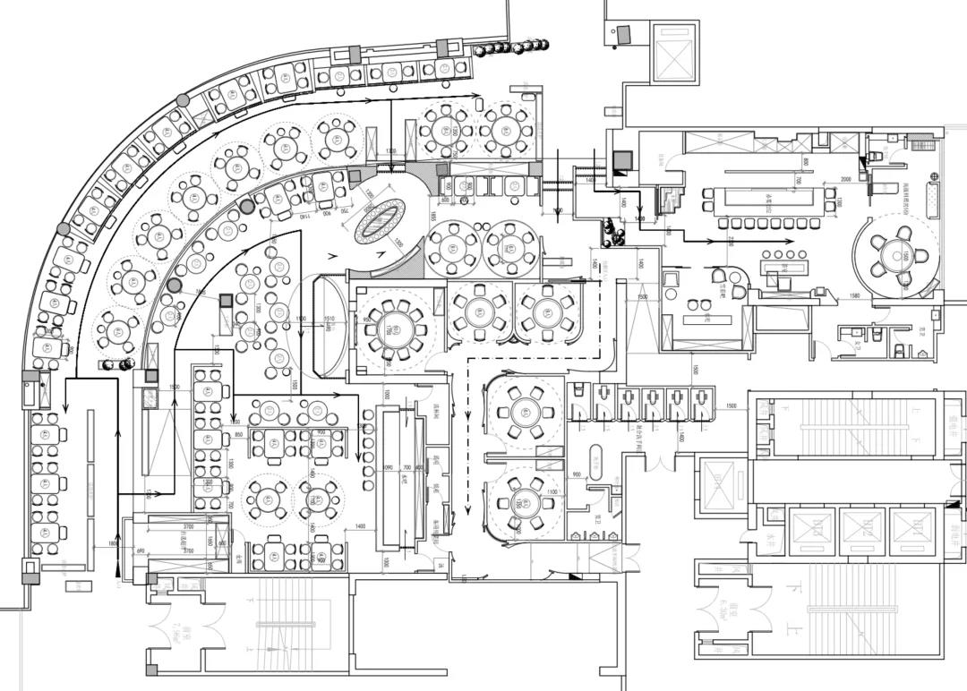
ANALYSIS DIAGRAM
分析图
平面图
服务流程
1. 设计前期阶段: 设计任务书 → 协商合约
2.概念设计阶段
3.方案设计阶段: 平面深化 → 效果图设计
4.扩初设计阶段: 扩初平面图 → 扩初天花图 → 主要立面图
5.施工图制作阶段: 平面类图纸 → 立面图 → 大样类图纸
6.施工跟进阶段: 现场图纸交底 → 多次现场指导
7. 回访: 回访记录 → 总结经验