案例分享> 杭州鹿门设计 x 朴境设计 / 荣和 . 公园墅
关键词: 私人豪宅 大宅
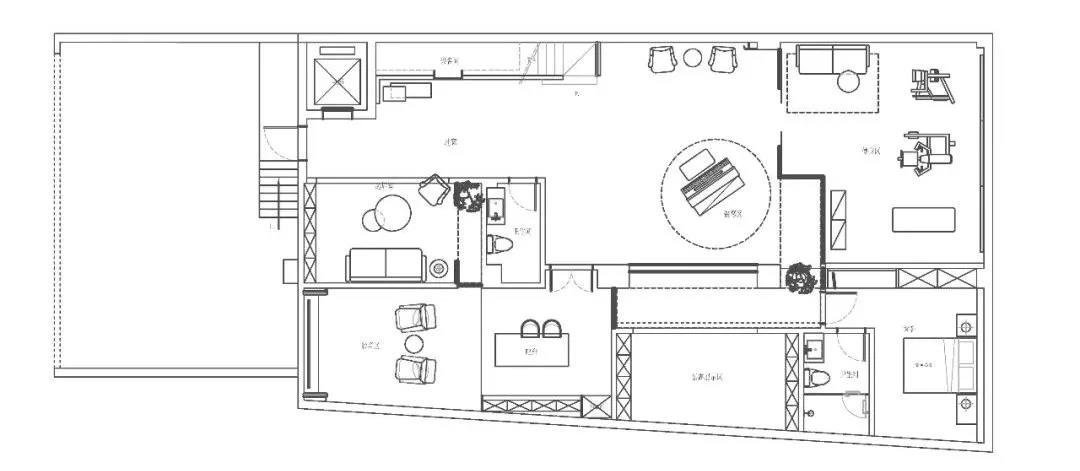
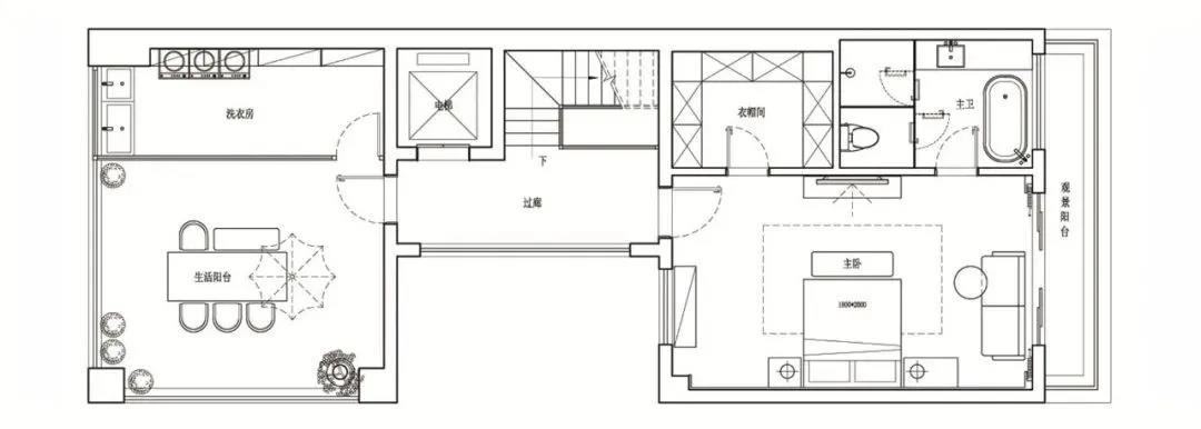
项目名称:荣和 . 公园墅
项目地点:广西,南宁市
项目面积:790 m²
1.接洽阶段
2.立项阶段
3.概念阶段: 概念方案确认 → 首期款支付
4.方案阶段:平面布置图 → 主要材料意向确认
5施工图阶段: 装修施工图
6.施工阶段:施工配合 → 尾款支付
7.结案阶段: 客户满意度调查
鹿门设计创办至今,致力于以革新的精神为社会提供多样性的设计产品,以创意,富有想象的创造力设计驱动更多的品牌价值,作品涵盖酒店、餐饮、办公、住宅等,以实景落地作为核心竞争力,我们努力以有策略的优秀创意,专业化的系统服务让客户感受高品质的空间气氛,并体验设计带来的舒适和便利享受设计改变生活。
KK.
查看更多服务