案例分享> 飞视设计 / 时光坠落 触地再生
关键词: 样板展示空间
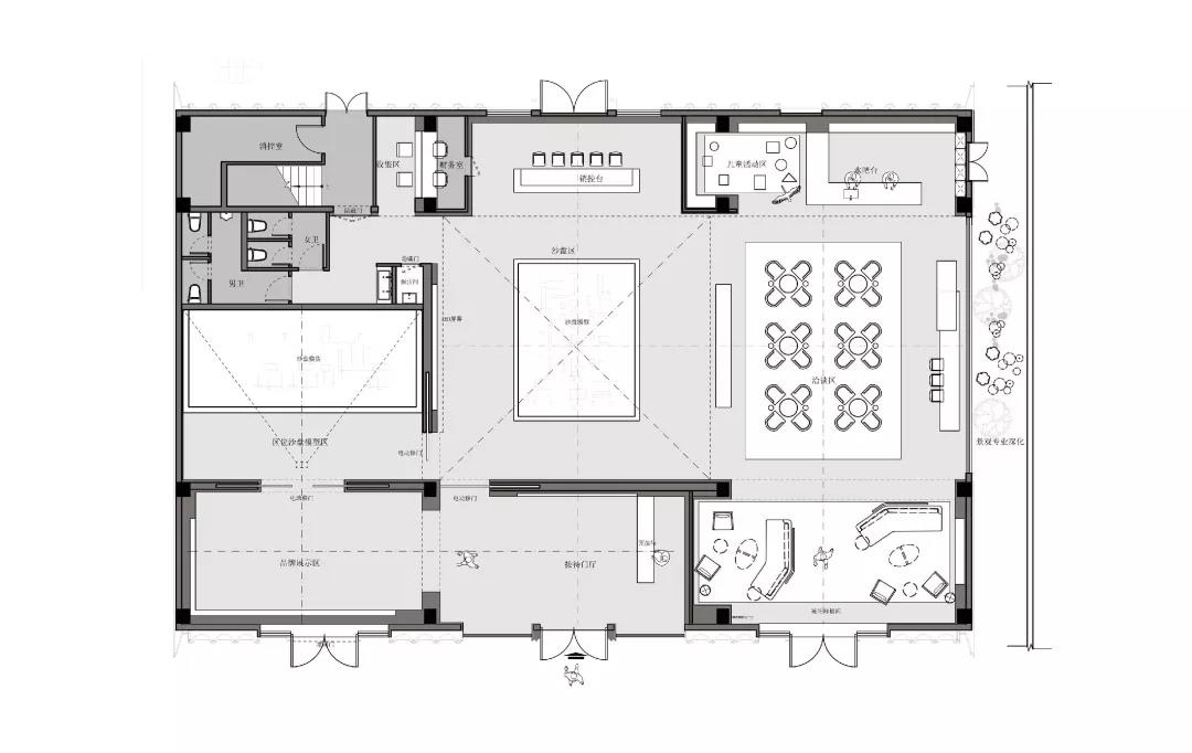
项目名称:华润置地南京置地中心
项目地点:江苏省,南京市
项目面积:480 m²
1.接洽阶段
2.立项阶段
3.概念阶段: 概念方案确认 → 首期款支付
4.方案阶段:平面布置图 → 主要材料意向确认
5.施工图阶段: 装修施工图
6.施工阶段:施工配合 → 尾款支付
7.结案阶段: 客户满意度调查
上海飞视装饰设计工程有限公司,于2006年在上海创立。一百多位来自全国各地的创意人才汇集于此,构成我们年轻激情的团队。多元背景为公司带来丰富的创造力、艺术性与学术力量。自创立以来,飞视设计一直专注于地产服务,积极发展高端私宅业务。我们秉持着严谨的专业态度、真正的服务意识、项目的掌控力度、对细节的严格要求,还有规范的设计管控流程,在全国与多家房地产企业合作并圆满完成设计项目。
KK.
查看更多服务